苏州好博医疗器械有限公司成立于2011年,为江苏省高新技术企业,整合国内外优质医疗技术资源,打造国内一流的医疗产业化基地,服务全国各级医疗单位。好博医疗在太仓浏河镇西北工业园投资1亿元建设现代医疗产业化基地,占地面积约20亩,建筑面积24000m²,包括研发中心、智能车间、恒温仓储、科技展厅等。
△ 好博医疗园区鸟瞰
△ 办公楼外景
好色先生污网站理念:
好色先生TV免费下载充分理解业主数十年如一日对医疗产业的不懈追求,出于对康复医疗事业的致敬,办公楼设计运用纯粹干净的白色,配合理性的办公室灯光氛围,打造一个安静舒畅、无尽探索、涤荡人心的医疗企业办公空间。空间上的划分和布局,为好博未来发展提供切实合理的空间架构,由此正式开启好博医疗的3.0办公时代。
打破建筑原始空间的均匀划分,连贯的展开平面布局和动线延伸,流畅的线条、纯净的色彩、温和的材质三大元素第一时间为来者解读好博的文化内在。
△ 一楼前厅
令有限空间被赋予无尽的美感和乐趣。
利用线条和灯光勾勒出简约之美,线条是项目的精髓。本案用线和面构建出简练优雅的设计美感。空间的分隔用弧形以此实现,再铺陈大面积的绿植造景,丰富室内的生态和灵动。
感受超级展厅带来的空间拓展。
入口造型灵感来源于开启健康之门,点明展厅的生命主题。门头造型和周围的景观对应,整体感强,灯光射线从内部延伸贯穿空间,使展厅框架感更强,寓意生命和自然都有遵循的规律可言。
“观、游、感”三大体系构成访客于展厅之内行走一遭的心灵体验。清晰明了的动线帮助访客快速了解展厅内的布局和陈列,同时还透过充满艺术感的具象化设计。
盘活空间活跃的生命力。
蜿蜒的弧形设计感极强,带来震撼的视觉效果。美化形体感的同时又拉伸纵向挑高;玻璃隔墙增强空间通透性效果,带来清晰的视觉感受。会议室内部以简洁一致的色调为主,充分尊重空间的整体感,用弧形化解了空间棱角,使之圆润可爱,在干净简洁的空间里注重舒适性是对于使用者的人文关怀。
05/
用现代手法进行重新打造衍生新的空间律动。
从过道区望向的水吧,明亮的蓝色亮丽澄明。设计师希望经过精心布置与重新勾勒之后,以陈列的吧台向来者传递着一种有温度的秩序感。以极简手法,运用材质特性,糅合为一份毫无喧嚣的纯粹美感,使心灵回归自在本能,追逐自然与时间的流转,专注感受无声胜有声的沉静画面。
△ 小景
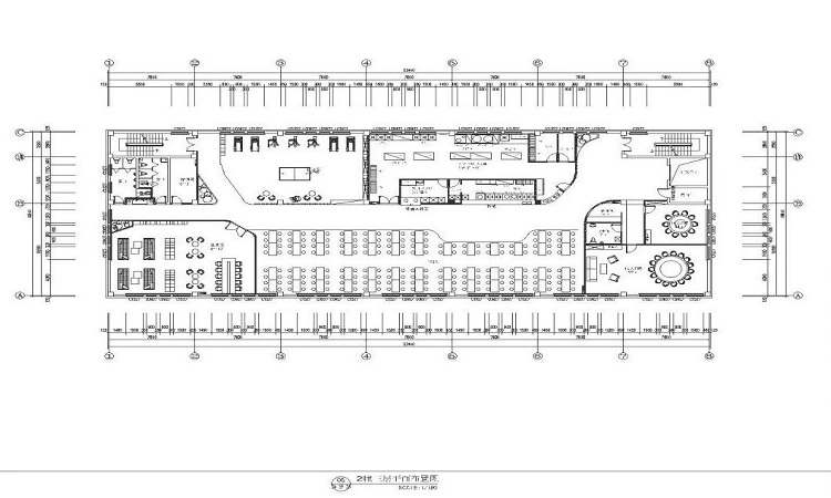
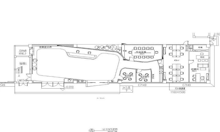
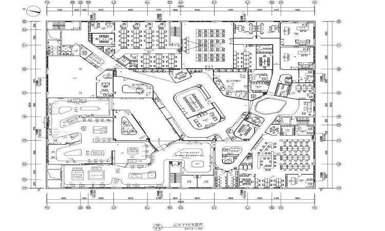
平面图纸呈现
项目名称 | 苏州好博医疗好色先生污污版设计
项目地址 | 江苏 太仓
设计面积 | 6000平
设计施工 | 好色先生TV免费下载设计 YOHO DESIGN
-更多实景案例高清大图 →好色先生污污版案例

